Halver - Büchenbaum - freistehendes, exklusives Einfamilienhaus auf sonnigem Grundstück
Objektbeschreibung
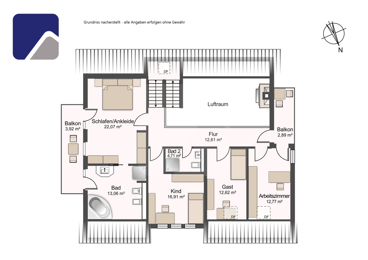
Dieses schöne Haus wurde im Jahr 2000 in Massivbauweise errichtet und begeistert mit seinem „luftigen“ und durchdachten Grundriss:
Im Dielenbereich des Hauses befinden sich WC, Garderobe und Abstellraum sowie der Hausanschlussraum und ein Zugang zur Küche.
Die Diele gewährt bereits an der Haustür Einblick in den äußerst hellen und mit ca. 42 qm sehr großzügigen Wohnbereich.
Dieser offen gestaltete Bereich bildet das Herzstück des Hauses.
Von hier aus betreten Sie eine der beiden Terrassen, verweilen vor dem Kamin oder lassen den Blick vom Sofa in die offene Galerie im Obergeschoss schweifen.
Angrenzend an den Wohnbereich bietet das Esszimmer einen Zugang zu der zweiten Terrasse sowie in die geräumige Küche des Hauses.
Hinter der Küche befindet sich der Hauswirtschaftsraum des Hauses.
Über die Treppe im Wohnbereich erreichen Sie die Galerie im Dachgeschoss.
Bis zu vier Schlafzimmer können hier eingerichtet werden.
Aktuell wird ein Balkonzimmer als Arbeitszimmer genutzt, zwei weitere Zimmer sowie ein Duschbad stehen Gästen zur Verfügung.
Das Hauptschlafzimmer des Hauses ist mit Ensuite-Badezimmer inklusive Whirlwanne und Dusche ausgestattet. Hier befindet sich auch der zweite Balkon des Hauses.
Der schön angelegte Garten bietet Ihnen verschiedene Plätze zum Verweilen sowie einen dekorativen Teich.
Eine ins Haus integrierte Doppelgarage rundet dieses Angebot ab.
Fazit:
Dieses Haus ist ebenso repräsentativ wie familientauglich.
Es passt sich sehr gut an die unterschiedlichen Bedürfnisse seiner jeweiligen Bewohner an.
Gern stellen wir Ihnen hier eine erste virtuelle Tour durch dieses schöne Haus zur Verfügung:
https://www.steinbach-dahlhaus.de/tour/kBL9
| Wohnfläche: | 193,69 m² |
| Grundstücksfläche: | 920 m² |
| Nutzfläche: | 51,64 m² |
| Zimmer insgesamt: | 9 |
| Schlafzimmer: | 4 |
| Badezimmer: | 2 |
| Separate WCs: | 1 |
| Etagen: | 2 |
| Garagenstellplätze: | 2 |
| Balkone: | 2 |
| Terrassen: | 1 |
| Baujahr: | 2000 |
| Zustand: | neuwertig |
| Kaufpreis: | 499.000 € |
| Käuferprovision: | 3,57% inkl. 19% MWSt. vom Kaufpreis, die wir jeweils von Käufer und Verkäufer erheben |
| Energieausweis-Art: | Verbrauch |
| Energieausweis gültig bis: | 24.11.2035 |
| Energieverbrauchskennwert: | 180,40 kWh/(m²*a) |
| Primärenergieträger: | Gas |
| Energieeffizienzklasse: | F |
| Baujahr (Energieausweis): | 2000 |
| Energieausweis-Jahrgang: | ab Mai 2014 |
| Energieausweis-Gebäudeart: | Wohngebäude |
* ca. 920 qm Grundstück
* ca. 193 qm Wohnfläche
* ca. 51 qm Nutzfläche
* Baujahr 2000
* gehobene Ausstattung
* großzügiger Wohnbereich
* offener Kamin
* Galerie im Obergeschoss
* bis zu 4 Schlafzimmer
* Duschbad und Ensuite-Badezimmer mit Wanne und Dusche
* zwei Terrassen
* zwei Balkone
* Garten mit Freisitz und Teich
* Doppelgarage
* Fliesen im EG
* Fliesen und Teppich im OG
* elektrische Rolläden mit individueller Zeitsteuerung
* Kunststoff-Fenster mit ISO-Verglasung
* Dachfenster von Velux (Holz) mit Verdunkelung
* Gaszentralheizung (Heizkörper und Fußbodenheizung)
* Fußbodenheizung im Wohnzimmer und in den Bädern
* Sat-TV
* DSL Telekom (unverbindliche Onlineauskunft): bis zu 500 Mbit UP / bis zu 40 MBit DOWN
* Glasfaser O2 (ab 2026 – unverbindliche Onlineauskunft): bis zu 1000 MBit DOWN
- Befeuerung: Gas
-
Kabel/Sat-TV
-
Kamin
Flächen
| Wohnfläche: | 193,69 m² |
| Grundstücksfläche: | 920 m² |
| Nutzfläche: | 51,64 m² |
| Zimmer insgesamt: | 9 |
| Schlafzimmer: | 4 |
| Badezimmer: | 2 |
| Separate WCs: | 1 |
| Etagen: | 2 |
| Garagenstellplätze: | 2 |
| Balkone: | 2 |
| Terrassen: | 1 |
Zustand & Erschließung
| Baujahr: | 2000 |
| Zustand: | neuwertig |
Preise
| Kaufpreis: | 499.000 € |
| Käuferprovision: | 3,57% inkl. 19% MWSt. vom Kaufpreis, die wir jeweils von Käufer und Verkäufer erheben |
| Energieausweis-Art: | Verbrauch |
| Energieausweis gültig bis: | 24.11.2035 |
| Energieverbrauchskennwert: | 180,40 kWh/(m²*a) |
| Primärenergieträger: | Gas |
| Energieeffizienzklasse: | F |
| Baujahr (Energieausweis): | 2000 |
| Energieausweis-Jahrgang: | ab Mai 2014 |
| Energieausweis-Gebäudeart: | Wohngebäude |
Ausstattung
* ca. 920 qm Grundstück
* ca. 193 qm Wohnfläche
* ca. 51 qm Nutzfläche
* Baujahr 2000
* gehobene Ausstattung
* großzügiger Wohnbereich
* offener Kamin
* Galerie im Obergeschoss
* bis zu 4 Schlafzimmer
* Duschbad und Ensuite-Badezimmer mit Wanne und Dusche
* zwei Terrassen
* zwei Balkone
* Garten mit Freisitz und Teich
* Doppelgarage
* Fliesen im EG
* Fliesen und Teppich im OG
* elektrische Rolläden mit individueller Zeitsteuerung
* Kunststoff-Fenster mit ISO-Verglasung
* Dachfenster von Velux (Holz) mit Verdunkelung
* Gaszentralheizung (Heizkörper und Fußbodenheizung)
* Fußbodenheizung im Wohnzimmer und in den Bädern
* Sat-TV
* DSL Telekom (unverbindliche Onlineauskunft): bis zu 500 Mbit UP / bis zu 40 MBit DOWN
* Glasfaser O2 (ab 2026 – unverbindliche Onlineauskunft): bis zu 1000 MBit DOWN
- Befeuerung: Gas
-
Kabel/Sat-TV
-
Kamin
Lage und Infrastruktur
Allgemeines zu Halver:
Halver ist eine Stadt im Westen des Märkischen Kreises mit ca. 16.000 Einwohnern, landschaftlich reizvoll gelegen an der Grenze von Bergischem Land und Sauerland.
Neben dem dichten Ortskern besteht Halver aus einer Vielzahl kleinerer Siedlungen, die sich über das gesamte umliegende, stark land- und forstwirtschaftlich bestimmte Stadtgebiet verteilen. Entsprechend zentralisiert präsentiert sich auch die Versorgungsinfrastruktur.
Ein modernes Fachmarktzentrum mit diversen Geschäften für den täglichen Bedarf befindet sich im zentrumsnahen Bereich. Freitags findet ein kleiner, aber feiner Wochenmarkt statt.
Das nächste größere Shoppingcenter finden Sie im ca. 15 km entfernten Lüdenscheid oder im ca. 20 km entfernten Hagen.
In der Stadtmitte Halvers befinden sich eine Sekundarschule (weiterführende Schule), das Anne-Frank-Gymnasium und zwei Grundschulen mit unterschiedlichen pädagogischen Konzepten. Etwas außerhalb befinden sich eine weitere Grundschule und das Eugen-Schmalenbach-Berufskolleg.
Halver ist zurecht stolz auf sein vielfältiges Schulangebot, das neben den umfangreichen Freizeitmöglichkeiten und einer Vielzahl von (Sport-)Vereinen Halver insbesondere für Familien mit Kindern attraktiv macht.
Eine auskömmliche Zahl an Kindergartenplätzen (verschiedene Träger) sowie ein stetig wachsendes Angebot für die U3-Betreuung ergänzen die herausragende „Bildungslandschaft“.
In Halver wird darüber hinaus von verschiedenen Trägern ein umfassendes Versorgungs- und Freizeitangebot für Senioren angeboten (inkl. Tages- und Kurzzeitpflege sowie diverser mobiler Pflegedienste).
- Distanz zur Autobahn: 20,0 km
- Distanz zum Kindergarten: 5,0 km
- Distanz zur Grundschule: 5,0 km
- Distanz zur Realschule: 5,0 km
- Distanz zum Gymnasium: 5,0 km
- Distanz zum Zentrum: 5,0 km
Sonstiges
Gerne überreichen wir Ihnen weitere Unterlagen. Bitte fordern Sie diese bei uns an.
Einen virtuellen Rundgang durch das Haus haben wir hier vorbereitet:
https://www.steinbach-dahlhaus.de/tour/kBL9
Weitere Angebote finden Sie unter: www.steinbach-dahlhaus.de
Bitte beachten Sie…
Unsere Angebote sind vertraulich und nur für den Empfänger bestimmt. Unbefugte Weitergabe an Dritte verpflichtet zu Schadensersatz in Höhe der Gesamtprovision. Die Maklergebühr ist mit Vertragsabschluss verdient und fällig. Diese Vereinbarung gilt auch, falls ein Lebensgefährte oder ein Familienmitglied bzw. Verwandter diese Immobilie erwirbt. Kommt ein anderer als der vorgesehene Vertrag (z. B. Mietvertrag) zustande, so wird die ortsübliche Gebühr zur Zahlung fällig. Wir sind berechtigt auch für den anderen Vertragsteil (Verkäufer) provisionspflichtig tätig zu sein. Sollte Ihnen dieses Objekt von anderer Seite angeboten worden sein, bitten wir um schriftliche Nachricht innerhalb drei Tagen. Alle Angaben stammen vom Verkäufer. Für objektbezogene Angaben wird keine Haftung übernommen. Unsere Angebote sind freibleibend. Zwischenverkauf und Preiserhöhungen bleiben ausdrücklich vorbehalten.
| Immobilie ist verfügbar ab: | nach Vereinbarung |
- Lage: 58553 Halver
- Grundstücksfläche: 920,00 m²
- Wohnfläche: 193,69 m²
- 9 Zimmer
- Kaufpreis: 499.000,00 €
Das sagen unsere Kunden
-
EtagenwohnungLüdenscheidWir bieten Ihnen hier eine helle, gepflegte und barrierefreie 2-Zimmer-Wohnung. Vom großzügigen Wohnzimmer haben Sie...
352,40 €62 m²2Zu Vermieten
-
EtagenwohnungHagen-DahlWillkommen in Ihrem neuen Projekt, in ruhiger, ländlicher Lage in Hagen Dahl Diese besondere und...
400 €90 m²3Zu Vermieten
-
ErdgeschosswohnungHagenHier handelt es sich um eine 2-Zimmer-Wohnung im Erdgeschoss eines 8-Familienhauses aus dem Jahre 2005. Das Highlight...
475 €65 m²2Zu Vermieten
-
EtagenwohnungLüdenscheidDiese charmante 1-Zimmer-Wohnung bietet Ihnen urbanes Wohnen direkt im Herzen von Lüdenscheid. Beim Betreten der...
280 €32 m²1Zu Vermieten
-
Sonstige ImmobilieHalverSie suchen den idealen Standort für Ihr Business? Nutzen Sie die Chance auf hochflexible Gewerbeflächen an einer...
1.800 €397 m²Zu Vermieten
-
EtagenwohnungLüdenscheidCharmante 2-Zimmer-Wohnung mit cleverem Schnitt & Gemeinschaftsterrasse Vom zentralen Flur (Diele) erreichen Sie beide...
330 €44 m²2Zu Vermieten
-
EtagenwohnungLüdenscheidDie hier angebotene 3-Zimmer Wohnung im 3. Obergeschossbefindet sich in zentraler Lage von Lüdenscheid (Nähe...
420 €69 m²3Vermietet
-
EinfamilienhausHalverWir dürfen Ihnen hier ein großzügiges und zeitlos modernes Einfamlienhaus in ruhiger Lage im Außenbereich von Halver...
499.000 €194 m²920 m²9Zu Verkaufen
-
ErdgeschosswohnungHalverDieses Angebot richtet sich an Personen, die eine ruhige und gepflegte Atmosphäre schätzen und Wert auf eine...
420 €25 m²1Zu Vermieten
-
EtagenwohnungMeinerzhagenSuchen Sie ein helles, gepflegtes Zuhause in ruhiger Nachbarschaft? Diese 84 qm große 4-Zimmer-Wohnung im 3....
630 €84 m²4Zu Vermieten
-
DG-WohnungHagen WehringhausenDer durchdachte Grundriss startet mit der einladenden Diele, die genügend Stellfläche für eine Garderobe oder...
430 €66 m²2Zu Vermieten
-
Grundstück (Wohnbebauung)Halver / OberbrüggeHalver - Oberbrügge Wunderschönes, perfekt zur Sonne ausgerichtetes Grundstück mit Gefälle zur Straße "Am Nocken"...
375.000 €7.516 m²Zu Verkaufen



















